СТРОИМ В ИПОТЕКУ ЧЕРЕЗ ЭСКРОУ СЧЕТ   >>>   ПОЛУЧИТЬ КОНСУЛЬТАЦИЮ
Фрактал-Групп
Фрактал-Групп
Без выходных: 9:00-18:00
+79968242725
Заказать звонок
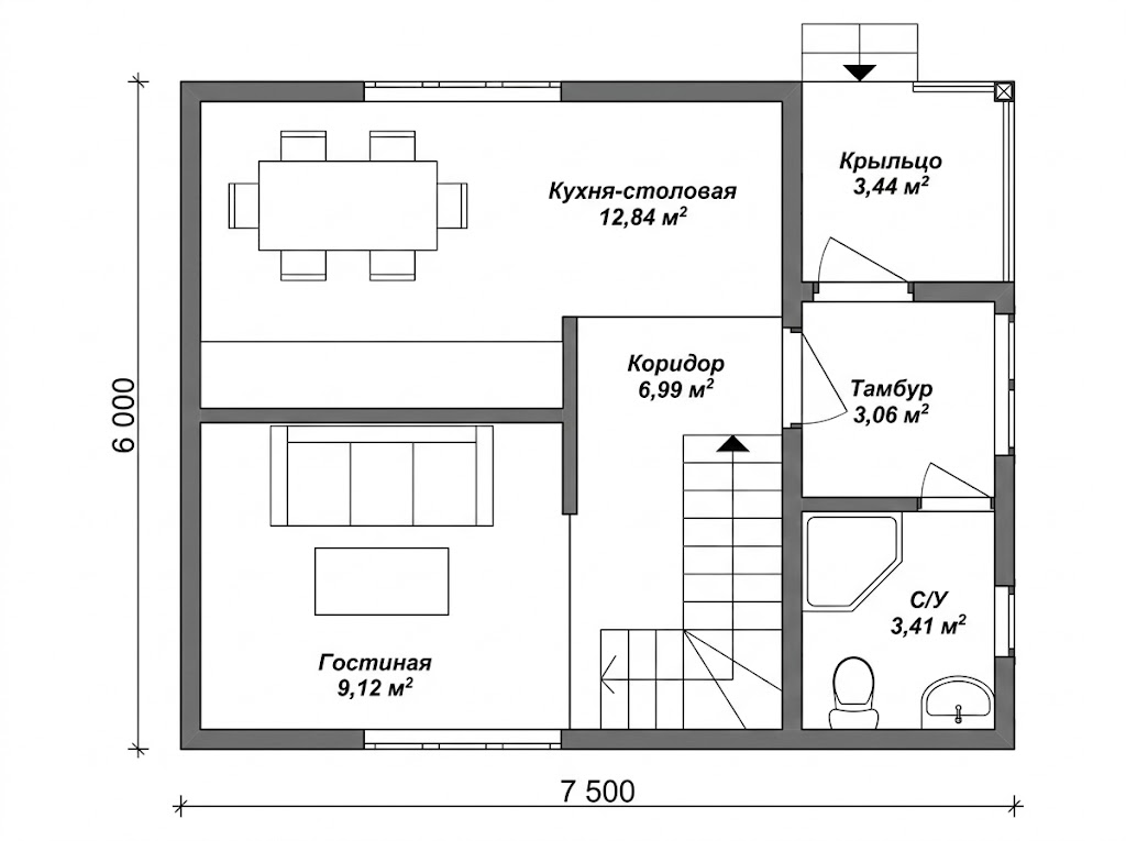
Газобетон Дом из газобетона 8х6
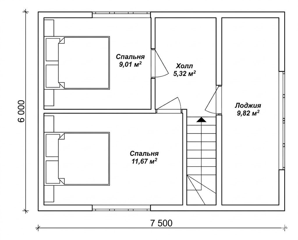
План 1 эт.
План 2 эт.

Проект «Дом из газобетона 8х6»

Стоимость под ключ
2 350 000 ₽ 2 700 000 ₽

Параметры проекта

  • Общая площадь 90.00 м²
  • Габариты 8x6 м
  • Материал Газобетон

Цены на строительство дома - фиксируем сметы до конца 2025 года

Каркасные дома
2 397 000 руб. 1 997 500 руб.
Газобетон
2 961 000 руб. 2 467 500 руб.
Пеноблок
2 679 000 руб. 2 232 500 руб.
Брус
2 538 000 руб. 2 115 000 руб.
Брус строганый
2 820 000 руб. 2 350 000 руб.
Двойной брус
3 243 000 руб. 2 702 500 руб.
СИП-панели
2 256 000 руб. 1 880 000 руб.
Кирпич
3 666 000 руб. 3 055 000 руб.
Керамический блок
3 525 000 руб. 2 937 500 руб.
Оцилиндрованное бревно
3 102 000 руб. 2 585 000 руб.
Рубленое бревно
3 948 000 руб. 3 290 000 руб.
Клееный брус
4 089 000 руб. 3 407 500 руб.
Арболитовый блок
2 763 600 руб. 2 303 000 руб.
Керамзитоблок
2 622 600 руб. 2 185 500 руб.
ЛСТК
2 481 600 руб. 2 068 000 руб.
Фибропенобетон
2 961 000 руб. 2 467 500 руб.
Рассчитать цену под мой бюджет
*Предложение не является публичной офертой. Стоимость является ориентировочной и приведена исключительно в информационных целях. Цена может меняться от географического расположения строящегося объекта и рыночных изменений цен на строительные материалы.

Виды комплектаций

Вариант 1

Фундамент на винтовых сваях

  • Сваи Винтовые Конусные/Лопастные;
  • Труба диаметр 89 мм (Электросварная);
  • Длина 3 метра (Заглубление 2,5 метра);
  • Антикоррозийное покрытие: Грунт;
Вариант 2

Ленточный фундамент

  • Песчаная подушка: 300 мм;
  • Щебенистая подушка: 100 мм;
  • Ростверк (лента): ширина 300мм, высота 600мм;
  • Рабочая арматура d12 мм;
  • Бетон М-300 с сертификатом;
  • Гидроизоляция фундамента.

Что входит в стоимость?

  • Плитный или ленточный ЖБ фундамент по результатам геологии
  • Возведение наружных стен и внутренних перегородок
  • Устройство стропильной системы и монтаж металлочерепицы
  • Монтаж пластиковых окон ПВХ с энергосберегающими стеклопакетами
  • Утепленная металлическая входная дверь с терморазрывом

Индивидуальные изменения

Понравился проект, но хочется сделать зеркальное отображение или добавить террасу? Мы бесплатно изменим планировку под ваши нужды!

Обсудить изменения с архитектором

Обсудить проект с архитектором

Оставьте заявку, и наш специалист свяжется с вами для бесплатной консультации по проекту «Дом из газобетона 8х6 ».

Популярные категории проектов

Рассчитать стоимость Акции
сегодня!
Наверх